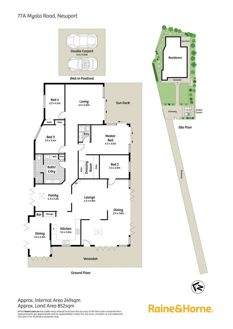
77a Myola Road,
Newport

Historic Beachside Landmark Overlooking Bungan Beach
4 Bed, 2 Bath, 2 Car, 852m2

Start an enduring love affair with one of Newport's most iconic pieces of real estate. Built circa 1911 and counting the richly historic Bungania and Bungan Castle among its neighbours, this character-filled sandstone cottage has been flawlessly restored to the highest standard of finishings throughout. Nestled in blissful privacy upon its premier 852sqm level landholding set atop Bungan Headland, one of Newport's most prized addresses, this landmark residence boasts breathtaking ocean views across the entire stretch of Bungan Beach, to Manly and the city skyline. Sunny gardens afford an impressive sense of arrival while the meticulously renovated interiors retain the home's grand proportions and refined period craftsmanship, creating a seamless transition between the old and the new. Every element carefully considered to create a home of enduring style and substance, unfolding over one beautifully proportioned layout with a choice of formal and casual spaces. Designed to embrace the outdoors, to a selection of areas in which to relax, play and entertain to the ever-changing vista. This beachside masterpiece is located in an unbeatable lifestyle setting between Newport and Bungan beaches, moments to village shops, cafes, dining, schools and CBD/Manly buses.

• Never to be built out views with registered covenant
• One of the earliest homes in the area, timeless elegance with high-end design
• Captures views that are magic by day and a twinkling light show at night
• Sandstone plays an integral role in defining the interiors and its heritage facade
• High ceilings, skylights, intricate classical detailing and wrap-around verandah
• Formal lounge and dining, home office/library or sitting room, casual family room
• Dream stone crafted kitchen at the social heart of the home, high end appliances
• Integrated appliances, Smeg five-burner gas cooktop, bespoke cupboards
• Four generous bedrooms, master suite with walk-in, ensuite and ocean outlook
• Designer bathrooms dressed in soothing coastal tones, concealed laundry
• Extensive custom joinery and engineered oak floors.
• Sheltered outdoor entertaining spaces, sunlounge area, child-friendly level lawns
• Secure gated entry, intercom, double carport, additional off-street parking

Rates:
Water - $173.29 per quarter approx.

Council - $913.08 per quarter approx.

Disclaimer: All information contained in this advertisement has either been provided to us by a third-party, or otherwise and we have no reason to doubt it's accuracy but do not take any responsibility for it. All interested parties should rely upon their own inquiries as to whether or not this information is accurate.

Get in touch.

AGENTS:

Ben Spackman &
Dom Didio,
Raine & Horne Mona Vale

Ask us a question about 77a Myola Road